

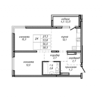
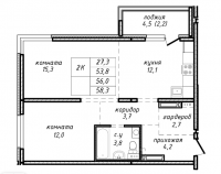
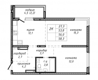
ЖК «Азимут» — 4 панельных корпуса на улице Связистов. Комплекс - отличный вариант для уютной семейной жизни в Новосибирске. В домах представлены разнообразные квартиры площадью от 25,7 до 86,6 м2!
Мы точно знаем, что главные проблемы инфраструктуры города - это наличие муниципальных школ и детских садов. В ЖК «Азимут» вы и ваши дети не столкнётесь с этой проблемой. В радиусе 1,5 километров расположилось 5 школ и 6 детских садов! Также рядом боле 20 супермаркетов и 15 аптек.



















ООО «ВОТЭТОДОМ!» - застройщик Барнаула, Новосибирска, Бийска. С 2021 года застройщик представил свой первый проект в Новосибирске - ЖК Азимут. Компания «ВОТЭТОДОМ!» является разработчиком проектов с инновационным подходом к строительству жилых домов.ООО «ВОТЭТОДОМ!» развивается как самостоятельное направление с инновационным подходом к строительству жилых домов. Проект нацелен показать, что современные квартиры в Сибири должны соответствовать XXI веку.

