
 
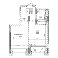
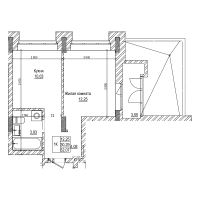
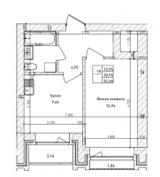
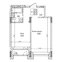
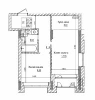
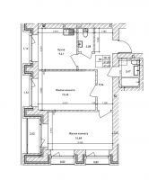
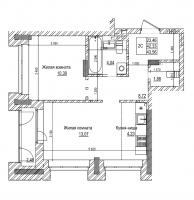
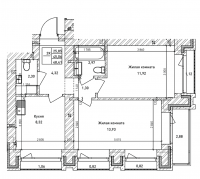
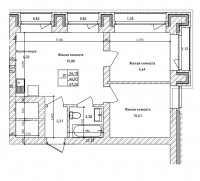
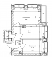
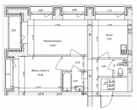
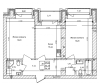
ЖК «Комсомольский проспект» это новый жилой комплекс в самом центре города. В шаговой доступности все необходимые современному жителю объекты инфраструктуры, пешая доступность от метро Гарина Михайловского. Дома ЖК «Комсомольский проспект» строятся из лаконичного, но надежного материала - кирпича. Будущих жителей ждет современное благоустройство территории, круглосуточная охрана, бесшумные скоростные лифты. В проекте предусмотрена подземная автомобильная парковка.






























