

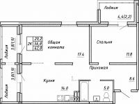
В Ленинском районе города Новосибирска возводится новый жилой комплекс «Квартет». Четыре дома комфорт-класса расположатся на улице Связистов, в районе с развитой инфраструктурой, и станут любимым местом будущих жителей и их семей. Близкое нахождение школ, детских садов, спортивных центров, магазинов и поликлиник сделает жизнь максимально комфортной.



















Прежде чем зайти на рынок недвижимости в Новосибирске, ГК «Союз» успешно возводила жилые объекты в Барнауле. Но в 2016 году решила покорить столицу Сибири и, нужно признать, у застройщика это получилось. Их первый проект «Акварельный» завоевал сердца многих покупателей. Компания не стала останавливаться на достигнутом и продолжила создавать новые объекты – жилые дома «Олимпийский» и по ул. Одоевского 9/1, ЖК «На Герцена» и «Акварельный». А сейчас в работе сразу несколько проектов.
Каждый их проект – новое слово в панельном домостроение. Это далеко не те «панельки», к которым многие привыкли. Вне зависимости от города – компания строит такие дома, которые полностью соответствует запросам современных покупателей и не уступает в качестве строительства.

