

"Мечта" - новый коттеджный посёлок для тех, кто ищет уникальное сочетание загородной природы и комфорта городской жизни. Уютные двухэтажные дома расположились всего в 11 километрах от Площади Калинина, а это значит, что добраться до Новосибирска вы сможете всего за 20 минут!
Жизнь в загородном доме подразумевает постоянные поездки в город, однако с “Мечтой” это не так! В комплексе будет организована собственная инфраструктура. Детский сад, спортивный центр, кофейни, автомойки, супермаркеты, игровые площадки - всё это будет в шаговой доступности от вашего дома!
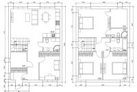
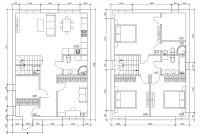
Собственный дом 135 м2 без шумных соседей через стенку - это действительно “Мечта”! Два этажа, больше окна и потолки 3 метра создают огромное, по-настоящему приватное пространство.









